ZpětÚvodNemovitosti PardubiceByty PardubiceProdej byty PardubiceProdej byty 3+1 PardubiceProdej pěkného bytu 3+1, 83 m², lodžie, parkování, klidná lokalita Jesničánky
Prodej pěkného bytu 3+1, 83 m², lodžie, parkování, klidná lokalita Jesničánky
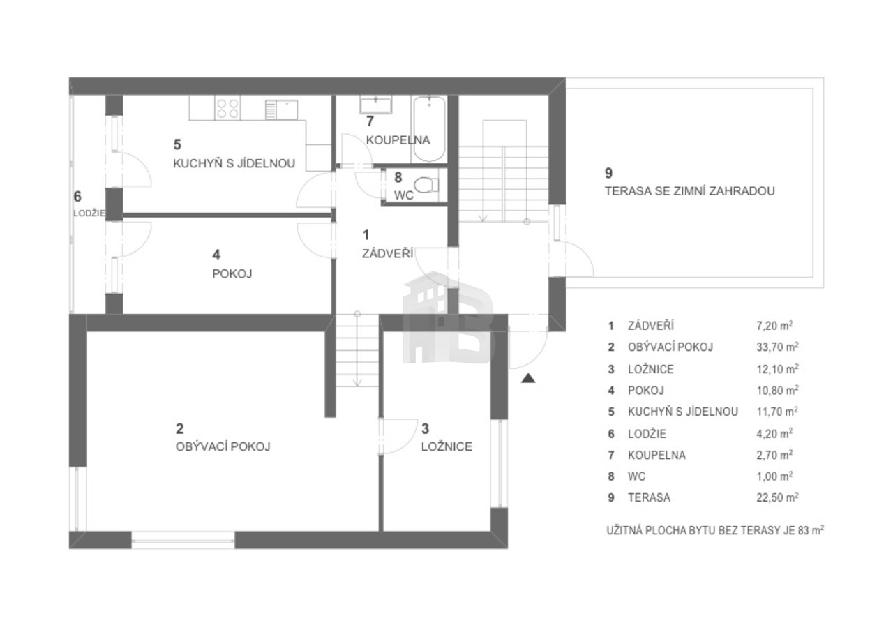
Nabízíme k prodeji světlý a velmi dobře dispozičně řešený byt 3+1 o výměře 83 m², který se nachází v domě pouze se třemi jednotkami v klidné lokalitě Jesničánky, Zelené Předměstí.
Popis nemovitosti
Nabízíme k prodeji prostorný a světlý byt o dispozici 3+1 a celkové ploše 83 m², který se nachází v domě se třemi bytovými jednotkami, což zajišťuje příjemné soukromí a klidné bydlení.
Byt prošel rekonstrukcí v roce 2012 a je ve velmi dobrém technickém stavu, připravený k okamžitému užívání bez n...
| Cena: | 5.975.000 Kč(za nemovitost) |
|---|---|
| Lokalita: | Zelené Předměstí, Pardubice, Pardubický |
| Stav nabídky: | aktuální |
| Číslo: | 71 |
| Typ reality: | Byty 3+1 - Byty |
| Plocha: | 83 m2 |
Kontakt na makléře
Vlastnosti nemovitosti
| Užitná plocha: | 83 m2 |
|---|
| Vlastnictví: | osobní |
|---|---|
| Technologie výstavby: | cihlová |
| Stav objektu: | velmi dobrý |
| Umístění objektu: | klidná část obce |
| Celkový počet podlaží: | 3 |
| Číslo podlaží v domě: | 1 |
| Sklep: | Ano |
|---|
| Plyn: | Ano |
|---|---|
| Elektro 230V: | Ano |
| Elektro 400V: | Ano |
| Kanalizace: | Ano |
| Topení ústřední: | Ano |
© 2026, APR Servis s.r.o. – všechna práva vyhrazena
Prohlášení o přístupnosti | Ochrana osobních údajů | Mapa stránek
Realitní software dodává eBRÁNA | Software a informační systém pro realitní kanceláře REALBrána | Nabídka nemovitostí RB Reality











